Дом 84.3 м²

Тюменская область, Тюменский р-н, Решетникова д, Кленовая ул, 5
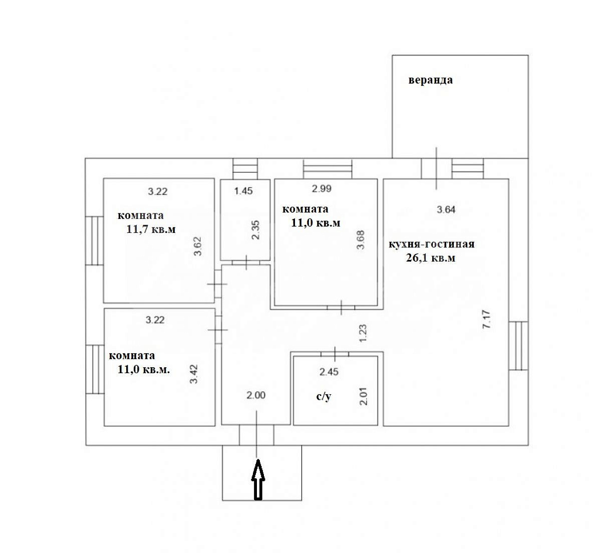
Общая площадь 84.3 м2
Этажность 1
Площадь участка 8 сот.
Категория земель Земли населённых пунктов
 

Номер объекта: 571128. СЕМЕЙНАЯ ИПОТЕКА.. Отличный вариант для семьи, которая хочет жить в спокойном районе, но при этом иметь доступ ко всем необходимым удобствам. Дом расположен в живописном месте 9 км от города, что позволяет наслаждаться чистым воздухом и красивыми пейзажами, при этом имея возможность быстро добраться до всех центральных точек города. Внутри дома выполнен современный ремонт, что создает уютную и современную атмосферу для проживания. Просторная кухня- гостиная и три комнаты обеспечат всем членам семьи комфортное пространство для отдыха и повседневной жизни. Два санузла, электрокотел, скважина, септик 10 куб., терраса, подсветка фасада ​​​​​​​ Дом расположен на одном этаже, что делает его удобным для проживания как для молодых людей, так и для пожилых родственников. В случае необходимости, ипотека и материнский капитал подходят для приобретения этого жилья. Участок 8 соток, огорожен забором, дает простор для любителей сада и огорода, хватит места для бани, теплицы и грядок, красивой и удобной детской площадки с качелями или бассейном. Не упустите возможность стать счастливым обладателем этого уютного дома, где комфорт и удобство сочетаются с доступной ценой. Звоните прямо сейчас и узнайте больше информации о данном предложении!

Похожие предложения

Выгодные предложения - ловите момент!