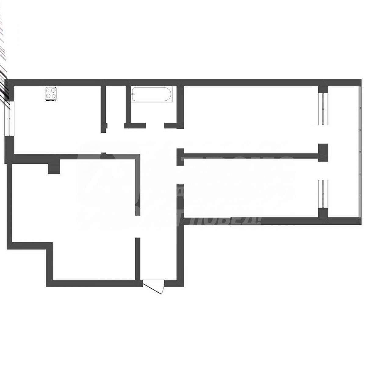
3-к квартира, 63 кв.м.

Тюменская область, Тюмень городской округ, Тюмень, Карла Маркса ул, 110а
Количество комнат 3
Этаж 6
Общая площадь 63.4 м2
Этажность 9
Жилая площадь 43 м2
Площадь кухни 10 м2
Лоджия, Балкон 1, 0
Санузел раздельный
Тип комнат Изолированная
Ремонт Косметический
Тип дома кирпичный
Год постройки дома 1980
 

Номер объекта: 571196. Продам 3х комнатную квартиру - распашонка. в районе МАЯК. В квартире требуется ремонт. Большая лоджия застеклена и утеплена, выход на лоджию с двух комнат. При продаже остается мебель и техника.. Имеется тамбур на две квартиры, где можно разместить дополнительные шкафы. Зеленый район. Много скверов. Рядом садики, в шаговой доступности лицей.№ 34.

Похожие предложения

Выгодные предложения - ловите момент!