1-к квартира, 30 кв.м.

Тюменская область, Тюмень городской округ, Тюмень, Северная ул, 35
Количество комнат 1
Этаж 2
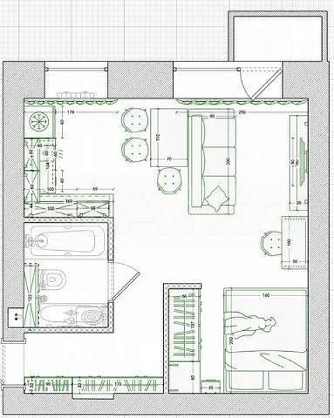
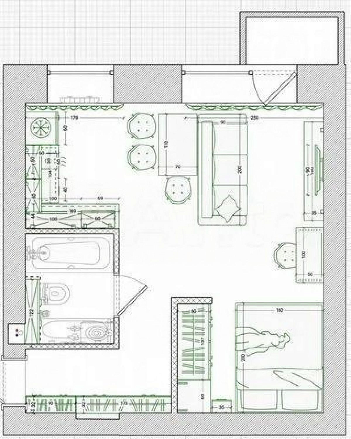
Общая площадь 30.2 м2
Этажность 4
Жилая площадь 18 м2
Площадь кухни 12 м2
Лоджия, Балкон 0, 1
Санузел совмещенный
Тип комнат Оба варианта
Ремонт Дизайнерский
Тип дома кирпичный
Год постройки дома 1960
Высота потолков в метрах 2.7
 

Квартира в центре Тюмени. Выполнен высококачественный ремонт, по дизайн проекту. Заменены все инженерные сети. Высокие потолки ( 2.7м). Теплый пол (керамогранит), в прихожей, ванной комнате и на балконе. Качественные межкомнатные двери, высотой 2.3 м. Сделаны выводы освещения под шкафы в прихожей, ванной, гостиной. Флизелиновые обои. В шаговой доступности школа, садик, ТРЦ ГУДВИН. Рядом детская поликлиника. Номер объекта: #1/565535/22044

Похожие предложения

Выгодные предложения - ловите момент!